Technique

Vous êtes ici : > > >

Balcons

 

Pour les balcons, plusieurs solutions sont possibles.

 


Solution n°1 : (Illustrations)

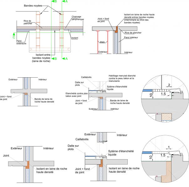
Balcon classique interrompant l'isolant. 

 

balcons-solution-1-sept-17-2-.jpg

balcons-solution-1-sept-17-3-.jpg

 

mini400_balcons-vues-3d-3-.jpgmini400_balcons-vues-3d-4-.jpg

 

 

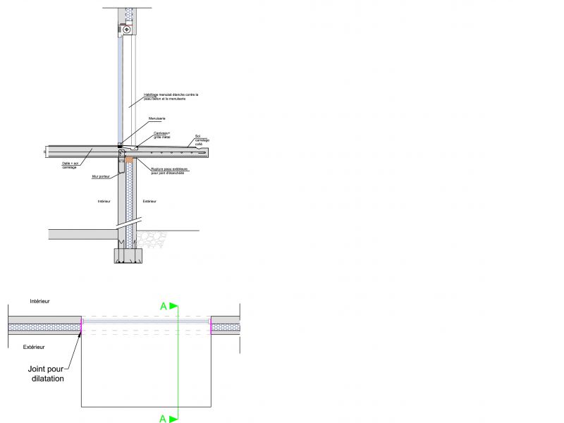
Solution n°2 : (Illustrations)

 

balcons-solution-2-sept-17-2-.jpg

balcons-solution-2-sept-17-3-.jpg

 

 

Solution n °3 : pour loggias ou balcons appuyés à leur extrémité: (Illustrations)

balcon-solution-3a.jpg

 

 

Solution n°4: (Illustrations)

balcon-solution-4.jpg

 

 

Solution n°5: (Illustrations)

balcon-5-site.jpg

 

 

Solution n°6: (Illustrations)

 

balcon-solution-6a.jpg

balcon-solution-6b.jpg