The Technic

Vous êtes ici : > > >

Balconies

 

There are several possible solutions for balconies.

 

Solution No.1: (Illustrations)

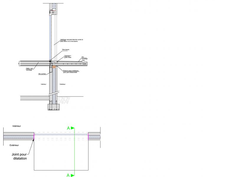
Standard balcony interrupting insulation

 

balcons-solution-1-sept-17-2-.jpg

 

balcons-solution-1-sept-17-3-.jpg

mini400_balcons-vues-3d-3-.jpgmini400_balcons-vues-3d-4-.jpg

 

 

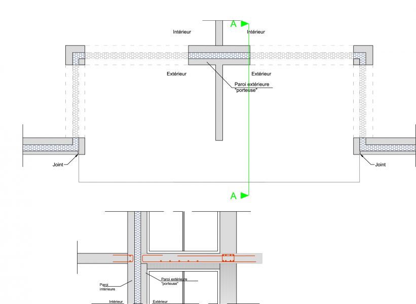
Solution No 2: (Illustrations)

 

balcons-solution-2-sept-17-2-.jpg

 

balcons-solution-2-sept-17-3-.jpg

 

 

Solution No.3: for loggias or balconies with end supports. (Illustrations)

 

balcon-solution-3a.jpg

 

 

Solution No. 4: (Illustrations)

 

balcon-solution-4.jpg

 

 

 

Solution No. 5: (Illustrations)

 

balcon-5-site.jpg

 

 

Solution No. 6: (Illustrations)

 

balcon-solution-6a.jpg

 

balcon-solution-6b.jpg